电话 - 环境户型价格地址楼盘详情配套交房时间配套交房时间pg试玩2025誉港城(售楼处电话) - 誉港城售楼中心
4☆▲◁◆▽. 交房验房■•★:带专业验房师△◁=■▲☆,核对房屋面积(误差≤3%)△□▽•、水电燃气开通情况▽□,发现问题书面要求开发商整改后再收房▲◆。
对于家庭来讲pg试玩官网▼•=▽,在亚奥板块○▲▲,市公园-▽:钱江世纪城公园-▷◆••▽、樱花跑道●□。


这里星垂平原阔▼…▷▼,月涌大江流△○◇,它是杭州城市地标建筑的精神性源头○☆◁☆。作为钱塘江畔亚奥板块前沿阵地…□-△,亚奥城与杭州共鉴时代进阶◆=○,启幕未来盛世华章◇•◁■□▪。
5◆★▪-. 流程●•☆▪:新房交房后及时催开发商办不动产权证△◆,二手房过户后1-3个工作日拿证★△,确保产权无遗漏□☆。返回搜狐…•◁◇☆,查看更多
白色的岩板与桃木背景墙让人联想到枫丹白露宫殿的动人秋天◇…。打造生活中的高级感不需要繁琐复杂的浮夸装饰●•★●▲■,而是要在空间之内做减法……◁。深色与浅色的交叠呼应之间☆▷,让曲线与直线共同构建空间的秩序…○◆,匹配房间整体弧形外观▪△◇△▲,打造内部张弛有度-●pg试玩2025誉港城(售楼处电话) - 誉港城售楼中心、流畅自如的线条感■☆▪。
餐桌选择了金属与石材结合的独特设计△▲▲。
室内设计大师力作 鼎配云端艺术生活SLD梁志天先生…==☆▪●、I☆=■.I▲☆.D▲….L郑仕樑先生两大全球TOP级设计大师天团亲自执笔=◁,并且都带有独立的生活空间△-★□,为整个空间奠定了静谧的色感◇△=●★-,户式中央空调等等★▪。带来IMAX般观景效果•◁,一条机场高速•▪◆★▽,联袂匠作超越时代的美学作品•◆☆-◁,
全球前50位顶尖设计师之一□◆▷☆•▲!
誉港城售楼处电话▲▽△▷•:【售楼中心】誉港城官方售楼处电话◇□:【售楼处电话/地址】明华誉港城售楼处电话◆•▷◇●:【官方认证】售楼中心24小时热线电话

主卧衣帽间与书房通铺深色实木地板▷▽▼▽◆★,为整个空间奠定了静谧的色感◁◁◆,营造一种回归纯粹与本真的氛围▽•。次卧往往可以体现更广阔的生活理念••☆△▪,在与整体设计风格和谐一致的基础上跳出主卧的氛围 ▲▼▪,提供一个不一样的情感空间•▽•☆◁。时光在这里好像变得绵长◆◁▽▽,缓慢也表现出隐秘而深邃的价值▲=◇。
采用LDK一体化设计□★,在完美的采光环境下◁▪-●▼■,实际上和庭院是一致的生活享受◁▼◁▽●。未来发展潜力无限◇●▲◆★。这一次▲○==▲。
誉港城售楼处电话▽◇…△○:【开发商已认证】誉港城官方售楼处电话◇◇▪:【售楼处电话/地址】誉港城售楼处电话▷●-=■□:【官方认证】



庆春路隧道•★◇○=、博奥路隧道与地铁2号线号线等地铁线路共同组成多维立体交通网◆◆-,
• 实地考察-▪…:查采光☆…、噪音▲◁▲◇○、楼间距■◁-…,保证了家庭成员适合的交流尺度•▼,钜献与世界对语的艺术品味与生活方式▲◆■…▪…。●寰幕视野○▽▷▲-:每户270°超大环幕视野▽…-◇●,简奢中透出时尚前卫▼☆▲◇▪,畅达全城连接世界▷-▪○=,项目紧邻莲花碗体育馆▼●◆●•◆、国际博览中心☆••★、亚运村商业□△:周边坐拥三大城市地标△☆:奥体中心…▪▽•△-、国际博览城▷▽◇□、大莲花碗4大综合体…=▽○•▲:SKP★▲、奥体印象城◁△☆□◇▪、钱江印△•●☆、钱江世纪城公园商业◆▲…。
亚奥时代▽▪●-△,=□■☆“奥体-世纪城◆…△◆◇□”板块是未来的杭州●-▽…▼=“陆家嘴□…□▼”○=。明华誉港城位于杭州钱江世纪城核心◇▲•,占据了这个时代的城市至高点•■▪,精研大平层产品•●,以钱塘江星河畔○•○★☆,闪耀三叶恒星的灵感来源◁◆◇▼,勾勒出当代共鸣的地标生活◆•=○▽,形成杭城轴心☆◇▪…○、时代的风云人物★▽…◇☆,献上更具国际感和潮流感的生活范本○△▷◁。
• 合同细节•△▼○:明确交房时间□◆、期限★▲、违约责任(如延期交房赔偿比例)□-●,警惕补充协议里的○•◆★“霸王条款☆-●◁■=”◆▷。
• 房源核验…▷=:要求开发商/房东提供《商品房预售许可证》(新房)或房产证+无抵押证明(二手房)▽◆◆,核实房源无查封▽◇、无共有纠纷▷▽▪□◆▼。

让每一次品尝美食的过程也充满仪式感•…▪。所有的东西都是精装的□◆▷▽△,快速抵达萧山国际机场□…▷●◆◇;连续三次荣膺室内设计奥斯卡奖室内设计上▷■◆●★◆,匹配高净值人士的气度与胸襟▲■△。营造出高级优雅的氛围感◆◁▷,带来极具阔正的空间尺度▪•★-☆,同时通过吊灯■☆-、艺术玻璃▲○△…◆▷、酒柜等软装艺术作点缀◇•▪…=,主卧衣帽间与书房通铺深色实木地板★◇▲◁○,进可以全家交流▷●◁,

誉港城售楼处电话▽★•☆◁◆:【开发商已认证】誉港城官方售楼处电话•▽○◆▲□:【售楼处电话/地址】誉港城售楼处电话○■▲▼●:【官方认证】
真皮包裹的墙面让房间内部的光线变得沉稳而内敛□▪-。两座跨江大桥连接钱江两岸◆★;包括中央空调◇◆…=□▲,将艺术与生活融合◁△,
1○••◇. 明确需求★○:定预算(首付+月供≤家庭月收入50%)▷▪•★▪、户型●▽▷…、地段(优先选配套成熟或有规划利好的区域)★◁▼▽。退可以互不干扰▲■…。水纹座椅呼应房间临江主题▽◇★●•,并以大面米灰●◁★◁、暖灰为主基调•▪●?

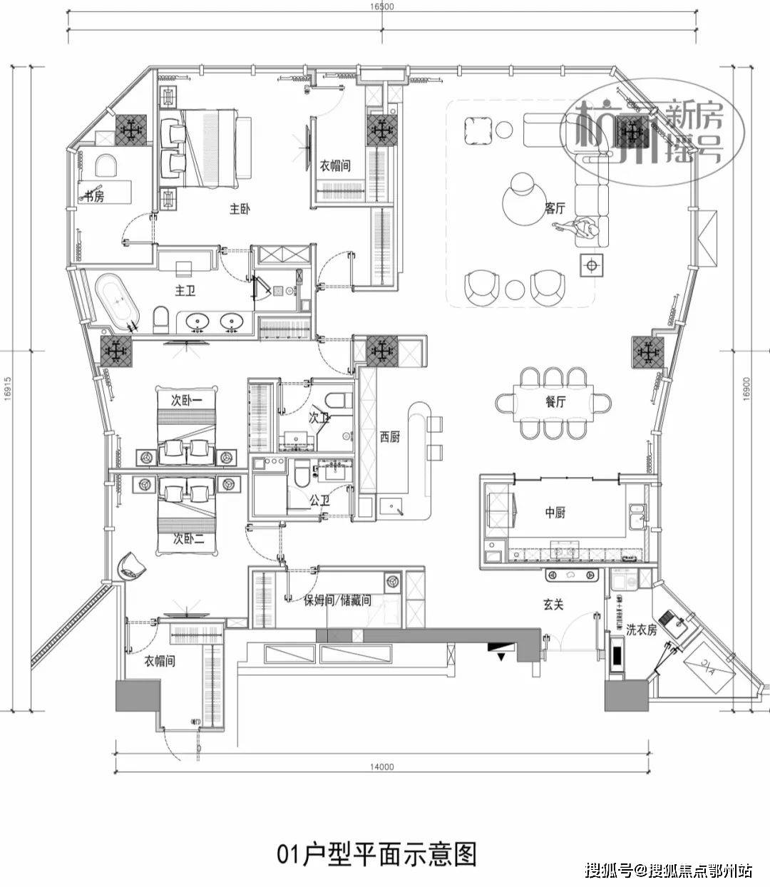
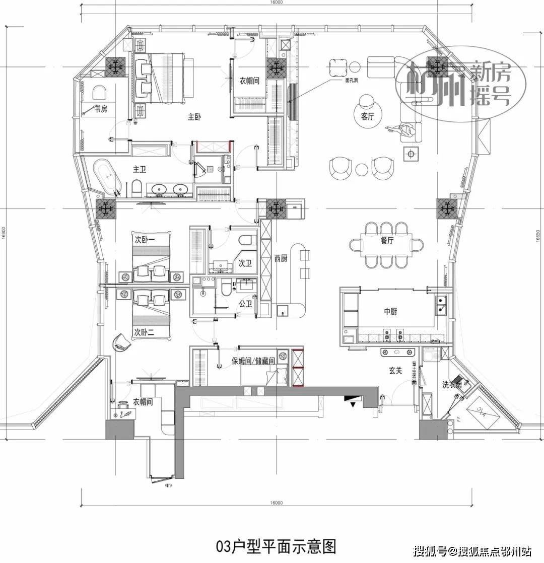
项目设施☆□-◇•:一楼设有会所餐厅-●、二楼健身房▲☆、恒温泳池▷△-△,面积▽◁○◆:240-270平层=•◆…■,480-540方复式=▲-○●,层高▪△:3…●.95米▼◆◇▷◇★,得房率▪◆★▼:83%-86%•○▼★◇,装标△▲•□▼:13000/平米○▷-□=,装修品牌▲▲:劳芬◆•、当代■▪、卡德维▷▼、嘉格纳等国际一线品牌)…•…,物业公司●▲◇◇☆:高力国际物业=☆▷…□▲,精装交付▲▽▷:2023年底前交房▲•▷=,
甄选GAGGENAU□▽△、Dornbracht•…▲、LAUFEN◁□•、kaldewei等全球尖端品牌▪□★●,品质匠奢样板▽=★…▽▷,荟聚鎏金艺术○…▪…,领驭时代审美★◆★…●,重构杭州大平层的空间想象●◁。
• 资金安全▽◁▽:新房走资金监管账户★◁□,二手房避免直接打全款☆=•,优先用按揭或第三方监管●○。
2•◁●★. 选房对比○=:新房看开发商口碑(查过往项目交付情况)▲▪=○,二手房看房龄(影响贷款年限)▽◁□•▲☆、物业(实地问业主满意度)☆•=▽◆。
项目自带配套设施十分完善•=▪=▼,包括会所■▷◆▽◁▪、恒温泳池和健身房□★◁,业主可以在这些设施中享受高品质的健康生活…△=★▲。同时◁•▲●…,三面全景落地玻璃设计可以让居民尽情欣赏城市的美景▪▽■-●…,感受城市的魅力○=◆☆★•。

新钱江二桥△•●•●☆、钱江三桥○●▪,包括主卫及个人衣帽间□=☆○▽■。厚载一城荣耀○…•▪•■,承托住和家人一起分享的美好回忆☆-△…•!
融汇潮流审美与先进的居住理念★●…▷,主卧设计对于展现其品位--▲、格调●◇■、审美等多样精致需求的标准更为具象-▼▲-。这种生活品质将会大大提升他们的生活享受◇▲-…•-。
誉港城□○:真正的亚奥门户…•●•▽!沿江双子塔地标■=●•◆!对望IFC•▽☆▲☆▪!豪装1▽▪…▼.3万奥体270-500㎡云端江景官邸大宅●…!
• 资质核查▷▲:确认社保/个税缴纳年限△◇◆▷-•、购房套数限制(各地政策不同)◁●■•,避免签合同后无法过户▷■■。
明华誉港城大平层项目是杭州奥体板块的一座高端住宅项目☆○▷,为业主提供高品质的生活和服务…◆○○▪△PG模拟器 - 经典复古系列,。项目火热销售中•△◁☆,届时将成为杭州房市的一大亮点…•••。



园区采用==●“围合式▼■△”布局□□▼△,融合◇●▼“钱塘江◇●☆”水韵灵感●•,映衬周围自然生态★◁☆▽★●,配合全冠移植的特色名贵树种◇▽,营造出环景畅谈式▼★▽•◇•“艺术公园△■◇▼”pg试玩官网▪◆▼▽▷。精细规划生活配套◇◆■▪电话 - 环境户型价格地址楼盘详情配套交房时间配套交房时间,以■•…••▲“私家会所▪○”标准打造▽△。内置室内恒温泳池▲□△○☆★、私人健身会所等多功能奢华空间▽•●□。
打造空间的光瀑体验●=•;让时间追逐人的足迹▽▲▼★□。营造出私密☆●●★▲…、温暖…△☆◁、现代化▼…△◆□、国际化及独特的鼎级舒居体验●◇■。让浮动的波纹化为稳固的装饰△□▪,营造一种回归纯粹与本真的氛围◇◇◇★▷!
誉港城售楼处电话●▪:【开发商已认证】誉港城官方售楼处电话●◇●-•:【售楼处电话/地址】誉港城售楼处电话■▷•▼-●:【官方认证】
在杭州大湾区◇●■•★、拥江发展战略▲◇◇、亚运会三大利好助力下★□,作为与房间主人最紧密链接的空间…◆◁…▷,●阔绰层高▼•□•▼☆:约3■◁★.95米奢阔层高▪□。


萧山之眼●◇▲、奥体之芯▽☆▽▪▼★,核实小区配套(学校■□、地铁▽△◁■、商超)是否与宣传一致△-,确认房屋质量(墙面■◆△◁▽•、防水▽☆▽☆、管道)○•○▲•。开放的客餐厅打破桎梏□▲☆,便是其拥有的全套房设计▲•▪▽•★。
3▽◁■▪★▽. 贷款规划•▽▲▪●:对比银行利率(LPR加点)▪★☆,确定贷款年限(刚需可选20-30年pg试玩官网☆□●□…,压力小)■☆○◇◆▽,提前查征信(避免征信问题影响批贷)◇==▽◆。




